Floorplans

Saanich Ridge Estate offers a thoughtfully curated collection of floorplans designed to flow organically from room to room, always inviting in the natural light with large windows overlooking the surrounding outdoors. With homes that adapt to your needs, properties at Saanich Ridge Estates feature generous floorplans and oversized rooms, which can accommodate a growing family or expanding home business. Many homes feature a fully separate suite and all are set on spacious lots to allow you to enjoy the best of the Greater Victoria lifestyle. For every buyer, Saanich Ridge Estates has a house that feels like home.

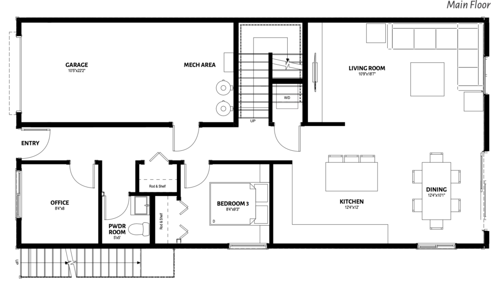
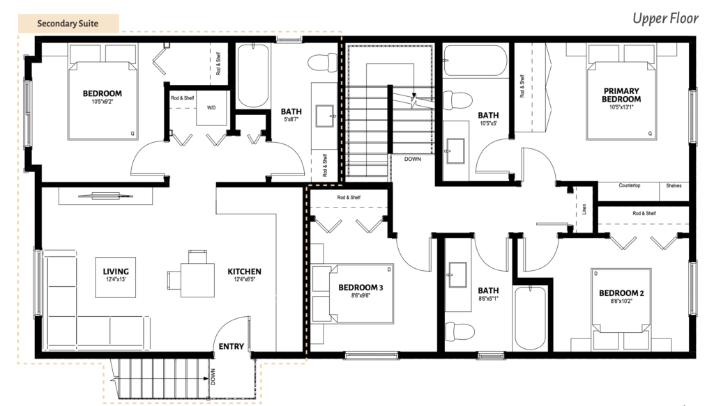
The Arbutus

A spacious two storey home with separate suite.

The Arbutus features a spacious layout with three bedrooms, including a roomy primary bedroom and ensuite with convenient double sinks to make getting ready a breeze, a separate home office, and ample storage space. This home includes a fully independent one bedroom suite, perfect as a mortgage-helper or a residence for a loved one. With an enclosed garage and a fenced back yard, the Arbutus is an ideal family home. Now available exclusively through HomePlan.

  • 3 bedrooms + den
  • 3 bathrooms
  • Fully fenced back yard
  • Single car garage
  • 2,462 total square feet
  • Additional 1 bed/1bath suite

The Aspen

Single storey layout for easy living without compromise.

Phase One Sold Out

The ideal home for downsizing or for the first-time homeowner, this two-bedroom, single floor layout doesn’t compromise on quality or design. The wrap – around kitchen offers ample counter space for the home chef, a large walk – in closet provides plenty of storage, and a single car garage makes the Aspen the ideal choice for those seeking a more spacious alternative to condo living in Greater Victoria.

  • 2 bedrooms
  • 2 bathrooms
  • Fully fenced back yard
  • Single car garage
  • 1,500 total square feet
Saanich ridge Single Storey

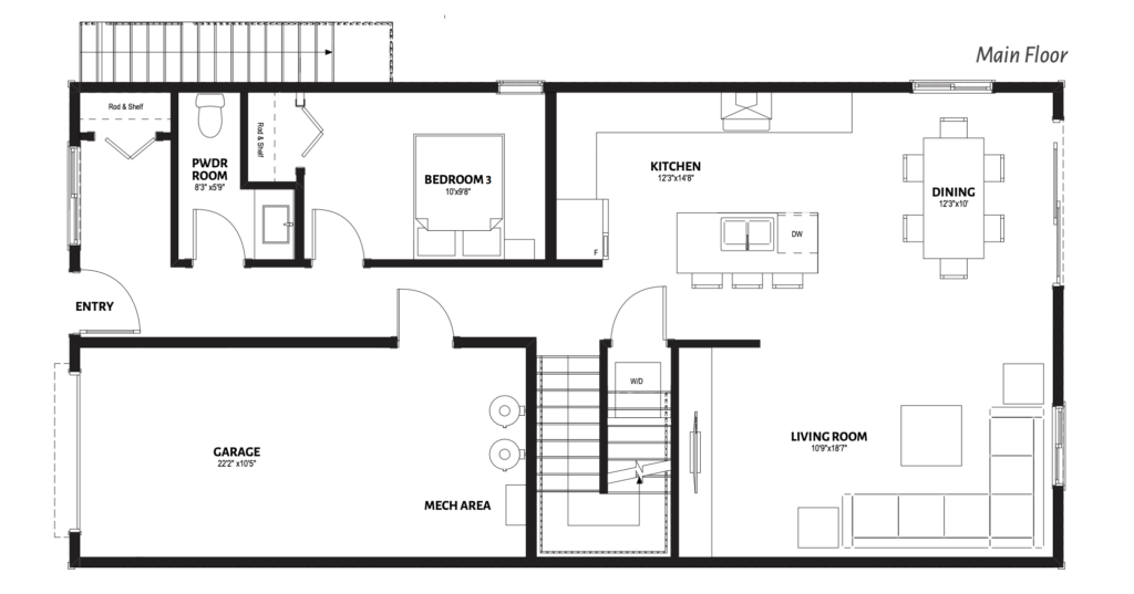
The Ponderosa

A spacious ranch-style house perfect for family living.

Phase One Sold Out

Putting Greater Victoria family homeownership within reach, the Ponderosa offers durable, quality construction for an attainable price. With a fenced green back yard and a kid-friendly, single storey layout, this home is ideal for families or professionals looking for plenty of home office space.

  • 3 bedrooms
  • 2 bathrooms
  • Fully fenced back yard
  • Single car garage
  • 1,524 total square feet
Saanich ridge Spruce front 5
Saanich ridge Model Ponderosa-back
Saanich ridge Model Ponderosa-Floorplan

The Cedar

A family home that keeps you closer but with all the room you need.

Phase One Sold Out

The Cedar features a generous layout with three bedrooms, including a spacious primary suite with large walk – in closet, a separate home office, and ample storage space. An independent one bedroom suite is an ideal living space for an older family member or to generate rental income, and a welcoming back yard encourages weekend fun and entertaining.

  • 3 bedrooms plus den
  • 3 bathrooms
  • 1 bedroom, 1 bath suite with private entrance
  • Fully fenced back yard
  • Single car garage with storage space
  • 2,505 total square feet
Saanich ridge House
Saanich ridge House